Penthouse 9 Dostępne
| Cena brutto mieszkania | 5 100 535.50 |
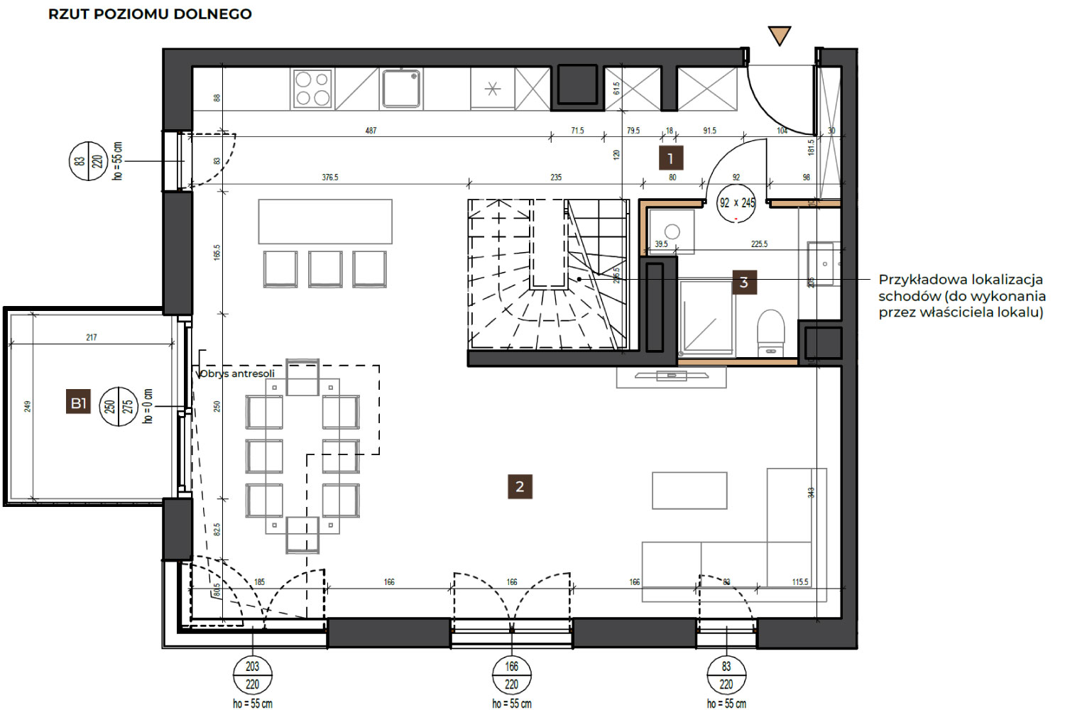
Pow. aranżacyjna
Powierzchnia aranżacyjna to maksymalna powierzchnia do dyspozycji klienta.
Powierzchnia aranżacyjna składa się z:
1. Powierzchnia użytkowa,
2. Powierzchnia pod ściankami działowymi,
3. Powierzchnia pomieszczenia PW. 118.15 m2
Powierzchnia aranżacyjna składa się z:
1. Powierzchnia użytkowa,
2. Powierzchnia pod ściankami działowymi,
3. Powierzchnia pomieszczenia PW. 118.15 m2
| Cena brutto za 1 m² pow. użytkowej | 47 389.53 |
Liczba Pokoi
od 2 do 4
Piętro
2 i 3
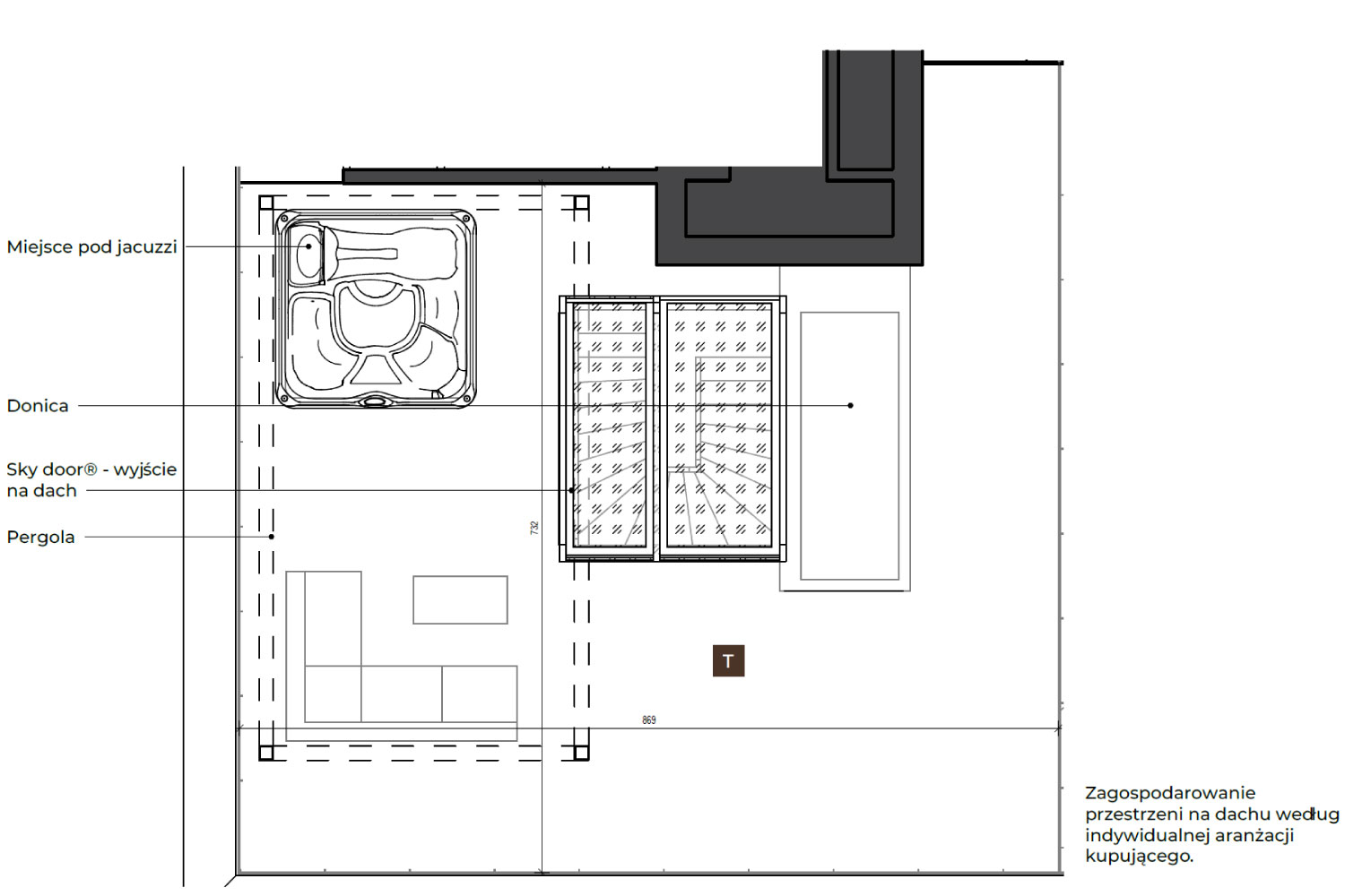
Pow. Tarasu
51.46 m2
Pow. użytkowa
107.63 m2
Cena brutto za 1 m2 pow. aranż.
43 170.00
DODATKOWE INFORMACJE
Balkon
Balkon przynależy do mieszkania i nie wchodzi w skład nieruchomości wspólnej, wliczony jest w cenę mieszkania
Ogródek
Prawo wyłącznego korzystania z części nieruchomości wspólnej w postaci wydzielonego ogródka przylegającego bezpośrednio do lokalu - wliczone jest w cenę mieszkania.
Akt notarialny
Pierwszy Akt Notarialny „Umowa Deweloperska” płatne 50% opłat nabywca i 50% opłat inwestor.
Drugi Akt Notarialny „ Umowa Ustanowienia Odrębnej Własności Lokalu Mieszkalnego , Umowa Przeniesienia Własności Lokalu Mieszkalnego” 100% opłat pokrywa nabywca.
Drugi Akt Notarialny „ Umowa Ustanowienia Odrębnej Własności Lokalu Mieszkalnego , Umowa Przeniesienia Własności Lokalu Mieszkalnego” 100% opłat pokrywa nabywca.
PW Pomieszczenie do wyłącznego wykorzystania
Sprawdź na planie zagospodarowania terenu w dok. do pobrania poniżej.
9.66 m2
Sprawdź
Sprawdź


